MENU

モデルハウス
MODELHOUSE

古今 – KOKON –

宇都宮市川田町
古今 – KOKON –

いにしえから、いまへ

時を紡ぐ日本の美
便利さを追わず、心地よさを選ぶ。
子どもたちの五感を育む、本物の素材。
古き良きものと、今の暮らしやすさを、ひとつの住まいに紡ぎました。
昔から今に至るまで 受け継がれてきた日本の美しさ。
無垢の床が足裏に語りかける温もり。
簾戸が描く、光と影の情景。
塗り壁が呼吸する やわらかな空気。

  • #タイルデッキ
  • #FIKA
  • #スレート外壁
  • #眺望カウンター
  • #チーク無垢材
  • #ウォールアート
  • #家事動線
  • #高気密高断熱
  • #吹き抜け
  • #耐震住宅
所在地
宇都宮市川田町1271-4付近 MAP
営業時間
9:00~18:00 ※ご見学は予約制となります。
定休日
水曜・祝日

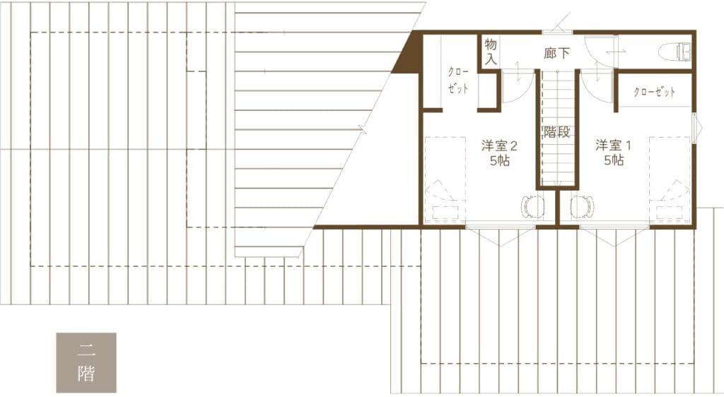
間取りプラン

古今 – KOKON –
古今 – KOKON –

建物概要

敷地面積
198.04㎡
延床面積
102.26㎡
1F
73.28㎡
2F
28.98㎡

モデルハウス概要

名称
古今 – KOKON –
所在地
宇都宮市川田町1271-4付近
営業時間

9:00~18:00 ※ご見学は予約制となります。

定休日

水曜・祝日

電話番号

028-614-5031

特徴
  • #タイルデッキ
  • #FIKA
  • #スレート外壁
  • #眺望カウンター
  • #チーク無垢材
  • #ウォールアート
  • #家事動線
  • #高気密高断熱
  • #吹き抜け
  • #耐震住宅
設備

タイルデッキ、外壁塗りかべ、石床の土間ダイニング、木製サッシ、簀戸

アクセス

宇都宮市川田町1271-4付近 + 大きな地図で見る

他のモデルハウス

MODEL HOUSE
住宅展示場来場予約 背景

住宅展示場来場予約
RESERVATION

家づくりのご相談予約受付中です。
お気軽にご相談ください。

このページをシェアする

トピックス
TOPICS

住まいのイメージを体感できる
見学会、イベント情報

イベント情報
EVENT

住まいのイメージを体感できる
見学会、イベント情報

すべてのカテゴリー

予約必須

#建売住宅内覧会

「GRACIA 50th anniversary F」幸せがめぐる家。心が還る場所。【さくら市】

開催期間
〜開催中
会場
さくら市氏家3509-93 (有)大塚医科様 付近

予約必須

#建売住宅内覧会

「GRACIA 50th anniversary N」 幸せがめぐる家。心が還る場所。【那須塩原市】

開催期間
〜開催中
会場
那須塩原市東三島5丁目526-26 (花いち生花店様付近)

予約必須

#建売住宅内覧会

「GRACIA 50th anniversary S」 幸せがめぐる家。心が還る場所。【小山市】

開催期間
〜開催中
会場
小山市横倉864 横倉公民館付近
兵庫塚建売

予約必須

#建売住宅内覧会

【宇都宮市兵庫塚】家族の繋がりを育む平屋

開催期間
〜開催中
会場
宇都宮市兵庫塚3丁目27-12

予約必須

#建売住宅内覧会

【宇都宮市江曽島】やわらかな灯りとつながる暮らし

開催期間
〜開催中
会場
宇都宮市江曽島町1301-3 柏建設様 付近
明るさに包まれるリビング・回遊導線で暮らし快適

予約必須

#建売住宅内覧会

【宇都宮市越戸町】明るさに包まれるリビング・回遊動線で暮らし快適

開催期間
〜開催中
会場
宇都宮市越戸町114-6
古今

予約必須

#モデルハウス見学会

宇都宮市川田町コンセプトハウス「古今 -KOKON-」

開催期間
〜開催中
会場
栃木県宇都宮市川田町1271-4付近
FIKA

予約必須

#モデルハウス見学会

アンティーク家具が彩るカフェ風住宅「FIKA -フィーカ-」

開催期間
〜開催中
会場
栃木県さくら市氏家3759-1
セレスト

予約必須

#モデルハウス見学会

小山市東城南モデルハウス「serest-セレスト-」

開催期間
〜開催中
会場
栃木県小山市東城南5丁目15-5
KIZASHI-2

予約必須

#モデルハウス見学会

宇都宮市平松モデルハウス 「兆 -KIZASHI-」

開催期間
〜開催中
会場
栃木県宇都宮市平松4丁目
古今

予約必須

#モデルハウス見学会

宇都宮市川田町コンセプトハウス「古今 -KOKON-」

開催期間
〜開催中
会場
栃木県宇都宮市川田町1271-4付近
FIKA

予約必須

#モデルハウス見学会

アンティーク家具が彩るカフェ風住宅「FIKA -フィーカ-」

開催期間
〜開催中
会場
栃木県さくら市氏家3759-1
セレスト

予約必須

#モデルハウス見学会

小山市東城南モデルハウス「serest-セレスト-」

開催期間
〜開催中
会場
栃木県小山市東城南5丁目15-5
KIZASHI-2

予約必須

#モデルハウス見学会

宇都宮市平松モデルハウス 「兆 -KIZASHI-」

開催期間
〜開催中
会場
栃木県宇都宮市平松4丁目

予約必須

#建売住宅内覧会

「GRACIA 50th anniversary F」幸せがめぐる家。心が還る場所。【さくら市】

開催期間
〜開催中
会場
さくら市氏家3509-93 (有)大塚医科様 付近

予約必須

#建売住宅内覧会

「GRACIA 50th anniversary N」 幸せがめぐる家。心が還る場所。【那須塩原市】

開催期間
〜開催中
会場
那須塩原市東三島5丁目526-26 (花いち生花店様付近)

予約必須

#建売住宅内覧会

「GRACIA 50th anniversary S」 幸せがめぐる家。心が還る場所。【小山市】

開催期間
〜開催中
会場
小山市横倉864 横倉公民館付近
兵庫塚建売

予約必須

#建売住宅内覧会

【宇都宮市兵庫塚】家族の繋がりを育む平屋

開催期間
〜開催中
会場
宇都宮市兵庫塚3丁目27-12

予約必須

#建売住宅内覧会

【宇都宮市江曽島】やわらかな灯りとつながる暮らし

開催期間
〜開催中
会場
宇都宮市江曽島町1301-3 柏建設様 付近
明るさに包まれるリビング・回遊導線で暮らし快適

予約必須

#建売住宅内覧会

【宇都宮市越戸町】明るさに包まれるリビング・回遊動線で暮らし快適

開催期間
〜開催中
会場
宇都宮市越戸町114-6
たいらな

予約必須

#建売住宅内覧会

矢板市木幡 建売住宅「-たいらな-」

開催期間
〜開催中
会場
栃木県矢板市木幡

来場予約
RESERVE